Hyresfastighet/bostadshus
Anrika Sunnerbygården i ny skepnad
Välkommen till anrika Sunnerbygården ursprungligen uppförd 1912. Huset har smakfullt renoverats utvändigt runt 2015 och därmed återfått sitt karaktäristiska utseende från tidernas begynnelse.
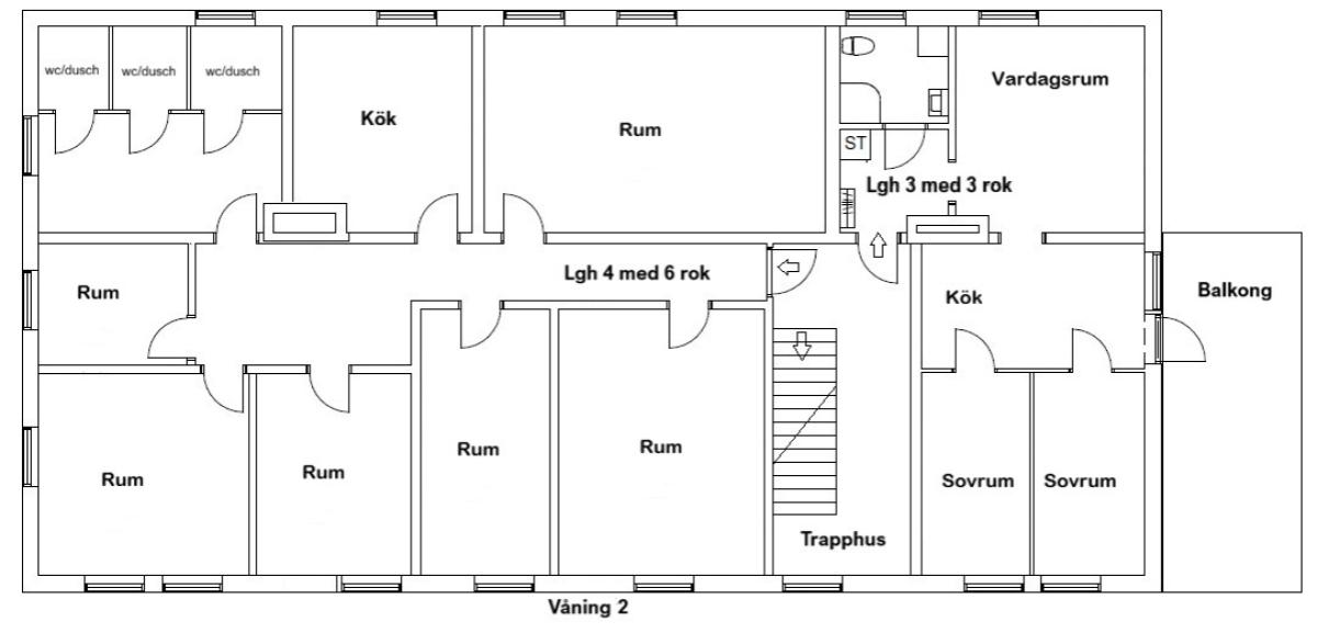
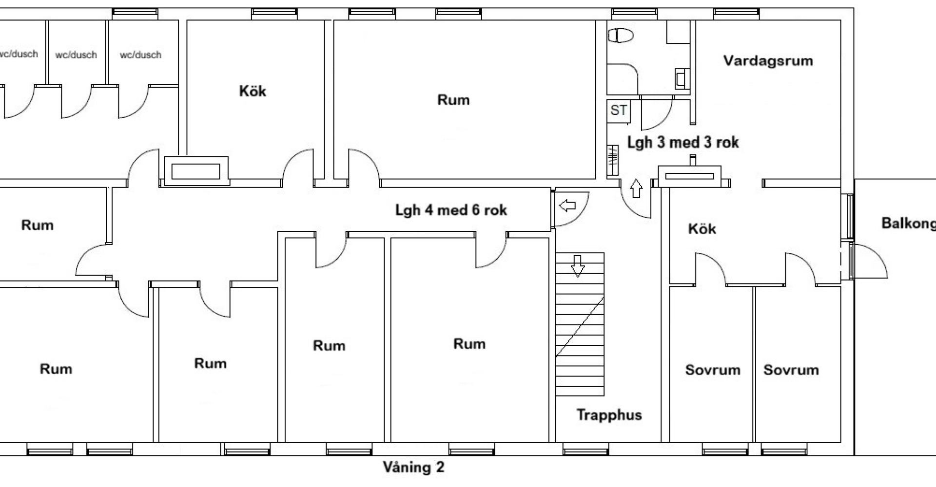
Efter detaljplaneändringen 2017 då fastigheten godkändes för bostadsändamål har huset med alla sina 18 bostadsrum rum med tillhörande kök och badrum haft en inriktning mot företag med behov av bostäder till arbetslag och anställda som är i regionen under längre tidsperioder och arbetar. Men då även 3 separata lägenheter finns så erbjuds även den lösningen av enskilt boende.
Därutöver finns ca 130 kvm vindsvåning som idag inte används alls då ett påbörjat ombyggnadsprojekt för tillfället vilar. Stora möjligheter finns således att forma huset efter eget behov, tycke och smak eller ta vid och fortsätta med dagens verksamhet och förvalta och förädla efter behov. Tomten är stor så även där finns kanske möjligheter till idéer och utveckling.
Just nu ligger intäkterna på ca 75 000sek/månad men då är lägenhet nr 4 med 6 sovrum, gemensamt kök och 3 wc/dusch tillfälligt vakant. Toppnotering 2021 och 2023 har legat på ca 1 600 000 sek/år så här finns fina möjligheter att raskt påverka intäktsflödet. Idag ägs fastigheten av ett AB som kan överlåtas till ny ägare istället för ett vanligt fastighetsköp, en möjlighet men inget krav.
Åk gärna förbi och titta utvändigt, ring eller maila för eventuella frågor och visningsplanering.
Film
Byggnader
- Byggnadens area
- 960 m2
Sunnerbygården
2,5 plan plus källare/souterrängvåning
- Byggnadens area
- 300 m2
- Energistatus
- Energideklaration ej utförd
- Byggnadstyp
- Hyreshusbyggnad
- Teknisk beskrivning
- Ursprungligen uppfört 1912 för ändamålet åldringshem. Sedermera blev byggnaden använd som föreningslokal. 2017 ändrades detaljplanen för att tillåta bostadsändamål. Fördelningen idag är: Entréplan: Idag nyttjas fastigheten både för korttidsboende och 3 lägenheter för mer permanentboende. Vindsutrymmet används idag inte alls men förberedelser för bostadsinredning har påbörjats med både el och VA i samband med renoveringen.
- Uppvärmning och ventilation
- Värmepump luft/vatten, Nibe S2125 x 2 plus olja
- Vatten och Avlopp
- Kommunalt
Tomt
- Tomtyta
- 4070 m2
- Tomtuppgifter enligt
- Lantmäteriet
- Tomtbeskrivning
Plan trädgårdstomt med inslag av träd
Parkeringplatser
Parkering i gårdsmiljö finns.
Närområdet
Att leva i Sorunda erbjuder ett väldigt vackert landskap med åkrar, ängar och djupa skogar. Sorunda och Lisö har lång
kustlinje med gott om bad från både klippor och sandstränder. Det är även ett perfekt område för den som har häst eller möjligen tänker skaffa.
Det finns flera gemensamma stall i området och många fina ridanläggningar med vackra ridvägar. För båtentusiasten finns flera småbåtshamnar och
båtklubbar med närhet till skärgården, utan långa väntetider.
Livsmedelsbutik finns inom ca 1 600 m och bussförbindelserna är förträffliga.
Skolor/barnomsorg: Solrosens Förskola, Förskolan Mamma Mu och Sunnerby kommunala förskola.
Kyrkskolan F-5 , Sunnerbyskolan F-9.
Mycket bra bussförbindelser i absoluta närområde där buss 729, 783, 848 och 858 trafikerar.
Kostnader
Taxering
- Taxeringsår
- 2025
- Taxeringsvärdesår
- 1956
- Taxeringvärde noggrannhet
- Fastställt
- Taxeringsvärde byggnad
- 2 686 000 kr
- Taxeringsvärde mark
- 1 094 000 kr
- Summa taxeringsvärde
- 3 780 000 kr
- Typkod
- 325 Hyreshusenhet, huvudsakligen lokaler
Energideklaration
- Energideklaration utförd
- Datum saknas
- Energikonsumtion
- 58000
Rättigheter och belastningar
- Planer och bestämmelser: Sunnerby 1:3 mm, Byggnadsplan (Beslutsdatum: 1979-05-23, Senast ändrad: 2017-07-04)
- Planer och bestämmelser: (b590)för sunnerby 1:311 och sunnerby 1:2, Ändring av detaljplan (Beslutsdatum: 2017-05-18, Registreringsdatum: 2017-07-04, Senast ändrad: 2017-07-05)
- Inskrivna övriga rättigheter, belastningar och övriga gravationer: Gorran, Vattenskyddsområde (Beslutsdatum: 2019-06-12, Registreringsdatum: 2020-09-07, Senast ändrad: 2026-02-13)
- Gemensamhetsanläggning: NYNÄSHAMN SUNNERBY GA:3
- Rättigheter last: Ledningsrätt: För fullständig beskrivning, se BE1. - Vatten och Avlopp
- Pantbrev
- 2st om totalt 2 500 000 kr
Övrigt
Separat garage/förråd finns på tomten.
Fastigheten ägs idag av ett aktiebolag och kan därför säljas antingen som en vanlig fastighetsförsäljning alternativt genom att aktierna till bolaget överlåtes varvid ingen lagfartskostnad debiteras köparen.
Fakta
- Typ
- Kommersiell
- Adress
- Sunnerbygården 1
- Ort
- Sorunda
- Tomtarea
- 4070 m2
Samarbetspartners
Alla bilder

Sunnerbygården från ovan

Välkommen till Sunnerbygården

Unik byggnad
stilfullt renoverad 2015

Sidoentré till en av lägenhterna

Parkeringsytan

Fasad åt söder

Snart är det sommar igen

Lgh 3 balkong - våning 2

Lgh 3 kök - våning 2

Lgh 3 wc dusch - våning 2

Lgh 2 ex. på rum - våning 2

Lgh 2 kök

Exempel på enkelrum

Lgh 0 i souterrängplan - wc dusch & kök

Vindsvåningen en gång i tiden

Vindsvåningen - ett pågående projekt
Taket förstärkt med limträbalkar så stödbenen skall kunna tas bort, enligt uppgift

Sunnerbygården en gång i tiden

Ansvarig mäklare

Sunnerbygården
1,6 km till Coop livsmedelsaffär
Planlösning

Entréplan ca 245 kvm

Våning 2 ca 245 kvm

Vindsvåning
Totalyta ca 129 kvm

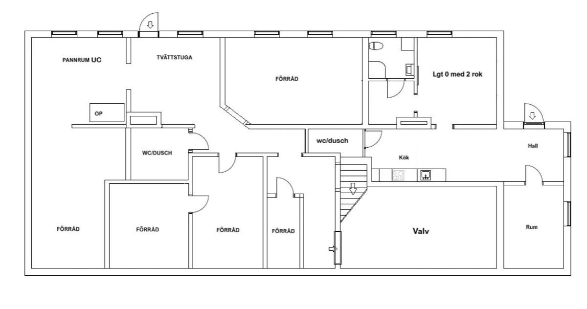
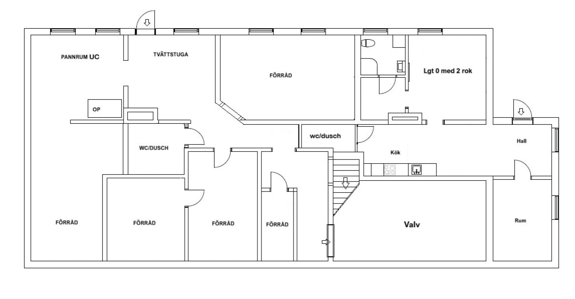
Källare-Souterrängplan
1 lägenhet, pannrum, diverse förrådsrum samt ett valv
























